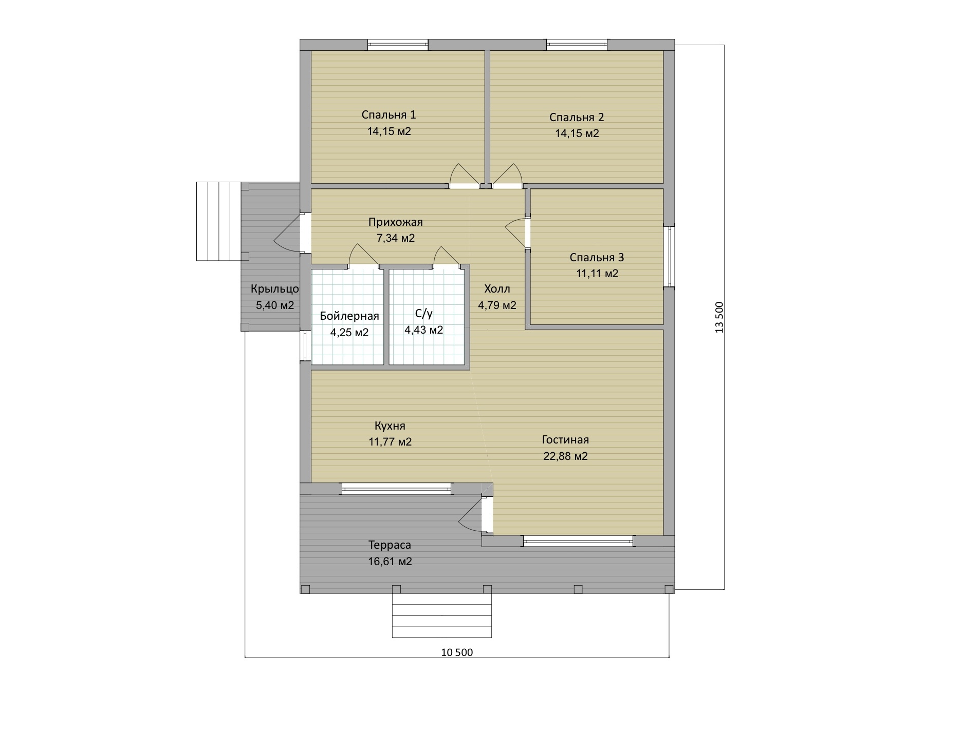
Продается просторный одноэтажный каменный дом с современной планировкой, включающей 4 комнаты, 2 санузла, прачечную, гардеробную и бойлерную. На участе в 6 соток, под ключ.
Дом находится по адресу: Тверская область, Калининский район, деревня Палкино
Выберите удобный способ связи
Или позвоните нам:
+7 (903) 631 31 84
+7 (961) 140 07 22