Проекты бань

Выберите готовый проект бани или закажите индивидуальное проектирование по вашим требованиям

Баня "Бн-29"

80,68 м²
1 комната
1 этаж
Парная
Санузел
Душевая

Вместительная одноэтажная баня с парной, душевой, санузлом, комнатой отдыха, тамбуром и террасой. Идеальный вариант для небольших участков.

Баня "Бн-30"

54,99 м²
1 комната
1 этаж
Парная
Санузел
Душевая

Компактная одноэтажная баня с парной, душевой, санузлом, комнатой отдыха и двумя террасами (открытой и крытой). Идеальный вариант для небольших участков.

Двухэтажная

Баня "Бн-31"

114,18 м²
2 комнаты
2 этажа
Парная
Санузел
Душевая

Вместительная двухэтажная баня с парной, помывочной, комнатой и зоной отдыха и террасой и балконом.

Одноэтажная

Баня "Бн-32"

90,98 м²
3 комнаты
1 этаж
Парная
Санузел
Душевая

Вместительная одноэтажная гостевая баня с парной, душевой, санузлом, двумя спальнями, кухней, гостинной и террасой.

Одноэтажная

Баня "Бн-33"

31,31 м²
2 комнаты
1 этаж
Парная
Санузел
Душевая

Миниатюрная одноэтажная баня с парной, комнатой отдыха и террасой. Идеальный вариант для небольших участков.

Одноэтажная

Баня "Бн-34"

48,92 м²
1 комната
1 этаж
Парная
Санузел
Душевая

Компактная одноэтажная баня с парной, душевой, комнатой отдыха и террасой. Идеальный вариант для небольших участков.

Одноэтажная

Баня "Бн-36"

59,2 м²
1 комнаты
1 этаж
Парная
Санузел
Душевая

Компактная одноэтажная баня с парной, душевой, санузлом, раздевалкой,кухонной зоной и зоной отдыха, техническим помещением и террасой. Идеальный вариант для небольших участков.

Одноэтажная

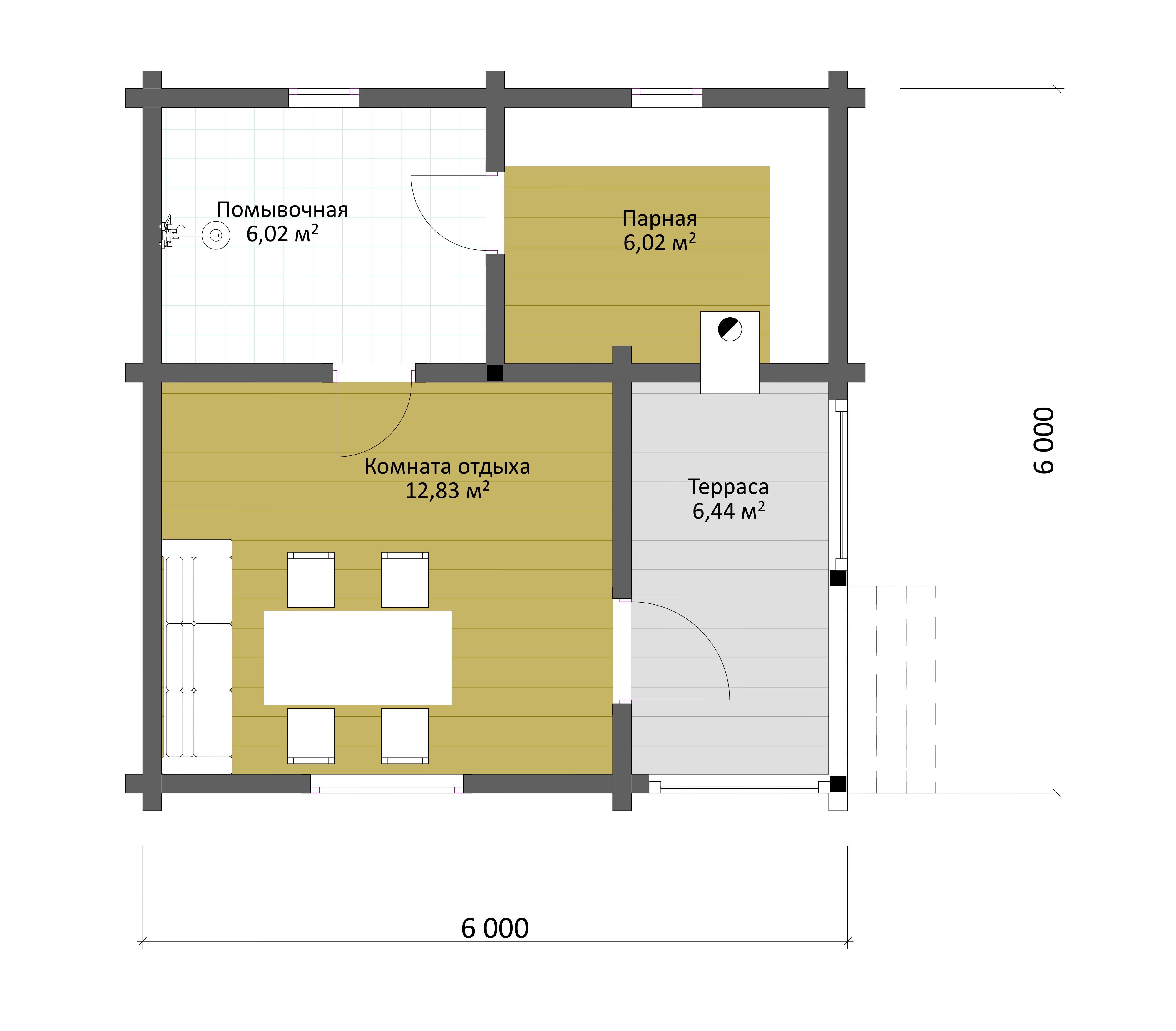
Баня "Бн-37"

46,73 м²
1 комната
1 этаж
Парная
Санузел
Душевая

Компактная одноэтажная баня с парной, помывочной и санузлом, комнатой отдыха и террасой, дровенником. Идеальный вариант для небольших участков.