Готовые и индивидуальные проекты домов

Постройте свой дом мечты

Получить консультацию
Качественные материалы
Квалифицированные специалисты
Кратчайшие сроки
Демократичные цены
Огромный опыт работы
Клиентский подход

Этапы работы

Этапы строительства
1
Предподготовка

Прежде чем приступить к разработке проекта, нам важно максимально точно понять Ваши пожелания, потребности, и ожидания. Для этого менеджер задаст вам ряд вопросов, которые помогут сформировать четкое техническое задание.

2
Составление проекта

При строительстве загородного дома, коттеджа или бани перед каждым клиентом встает важный вопрос: выбрать готовый типовой проект или разработать индивидуальный? Оба варианта имеют свои преимущества, и правильный выбор зависит от Ваших потребностей, бюджета и сроков.

3
Подготовка проектно-сметной документации

Наши специалисты готовят полный пакет документов, служащий четким планом и финансовым ориентиром для всех этапов работ. Вы получаете полный контроль над бюджетом и сроками реализации вашего проекта.

4
Подписание договора

Подписание договора — это важный шаг, который закрепляет наши взаимные обязательства и гарантирует полное соблюдение всех согласованных условий. Мы обеспечиваем прозрачность каждого пункта и юридическое сопровождение на всех этапах сотрудничества.

5
Возведение фундамента

Возведем фундамент с учетом особенностей рельефа местности, климатических условий, бюджета и выбранного проекта. Наши специалисты помогут грамотно выбрать один из видов фундамента: столбчатый, ленточный, свайный и т.д.

6
Монтаж кровли

На данном этапе происходит монтирование кровли с учетом особенностей стропильной конструкции, а также архитектурного облика дома в целом. Разные виды покрытий, натуральная черепица или металлочерепица, мягкая кровля, ондулин, оцинкованное железо или традиционный шифер, требуют различный набор подготовительных работ. Специалисты компании «Мастер ок» помогут не только смонтировать крышу, но и правильно ее оборудовать с помощью системы водостока, паро- и гидроизоляции.

7
Монтаж стен

Возведение стен с учётом требований устойчивости, долговечности, прочности. В зависимости от выбранного проекта и условий эксплуатации стены сооружения должны соответствовать нормам по степени огнестойкости, теплопроводности, защищенности от шума. Основные материалы, используемые в современном строительстве - это брус сухой или естественной влажности, клееный брус, оцилиндрованное бревно, газосиликатные блоки и т.д.

8
Финишная отделка

На этапе отделки осуществляется монтирование инженерных коммуникаций.В рамках этих работ наши специалисты проводят и укладывают электропроводку, канализацию, водопровод, отопление, системную вентиляцию. После этого или параллельно производится внутренняя отделка помещений.

Бр-1
К-8
Бр-2
Бр-3
Бр-4
Бр-5
Бр-6
Бр-7

Услуги

Строительство

Мы построим для Вас дома, бани, беседки любой сложности из различных материалов. Обсудим все нюансы и учтем все Ваши пожелания

Проектироваие

Работаем с готовыми проектами, осуществляем проектирования "с нуля" учитывая Ваших пожелания и возможности.

Фундамент

Возведем фундамент с учетом особенностей рельефа местности, климатических условий, бюджета и выбранного проекта. Мы поможем грамотно выбрать нужный вид фундамента.

Кровля

Устанавливаем крышу с учетом: конструкции стропил, архитектурного стиля дома, типа покрытия. Комплекс работ включает: паро- и гидроизоляцию системы водостока.

Стены

Строим с соблюдением норм по: прочности, огнестойкости, тепло/шумоизоляции. Основные материалы современного строительства: брус сухой, естественной влажности, клееный брус, газосиликатные блоки и т.д.

Инженерные сети

На этапе отделки монтируем и прокладываем: электропроводку, канализацию, водопровод, отопление, вентиляцию. Работы выполняются параллельно с внутренней отделкой.

Наши проекты

Бани

Баня "Бн-29"

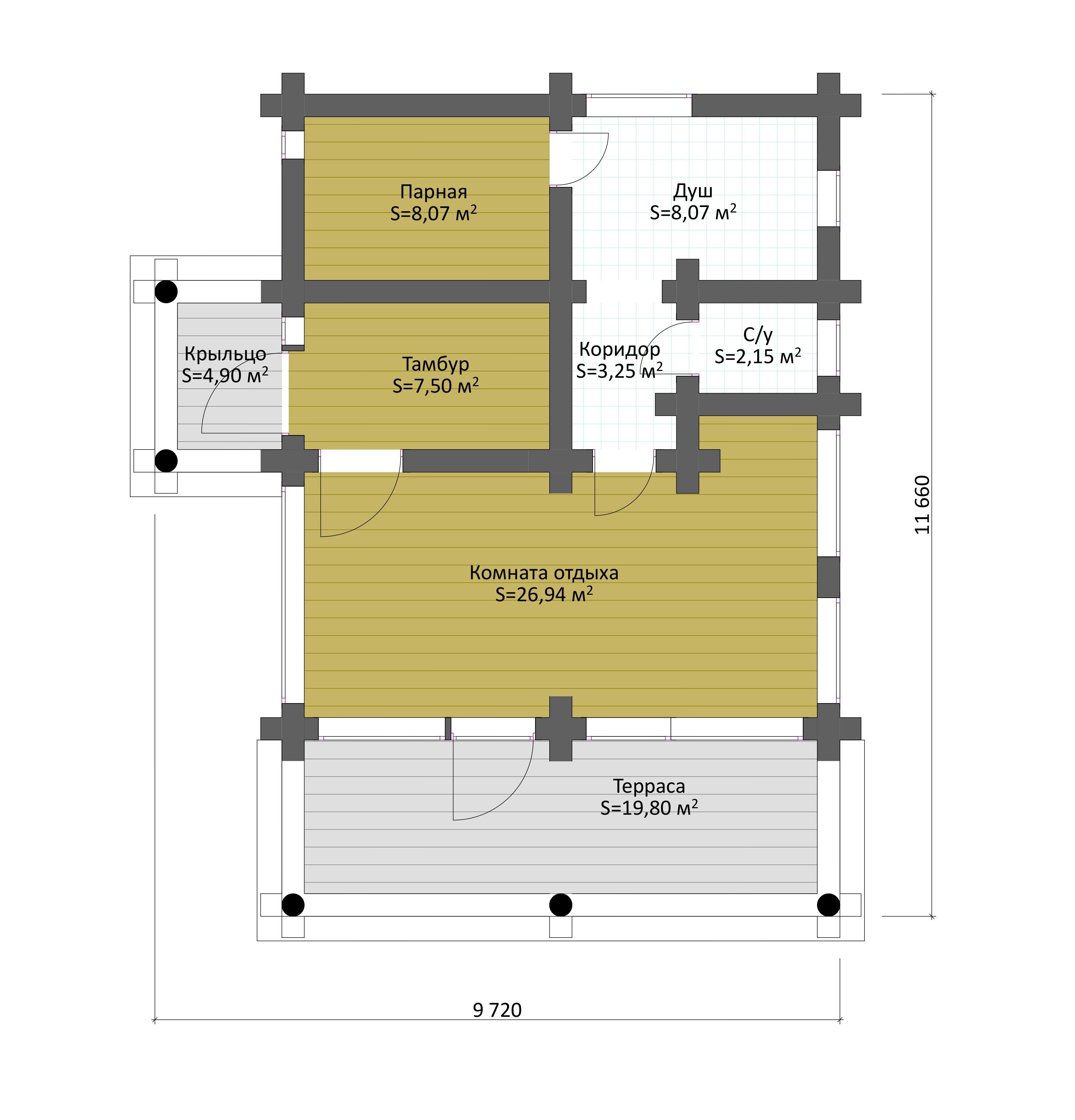
80,68 м²
1 комната
1 этаж
Парная
Санузел
Душевая

Вместительная одноэтажная баня с парной, душевой, санузлом, комнатой отдыха, тамбуром и террасой. Идеальный вариант для небольших участков.

Баня "Бн-30"

54,99 м²
1 комната
1 этаж
Парная
Санузел
Душевая

Компактная одноэтажная баня с парной, душевой, санузлом, комнатой отдыха и двумя террасами (открытой и крытой). Идеальный вариант для небольших участков.

Двухэтажная

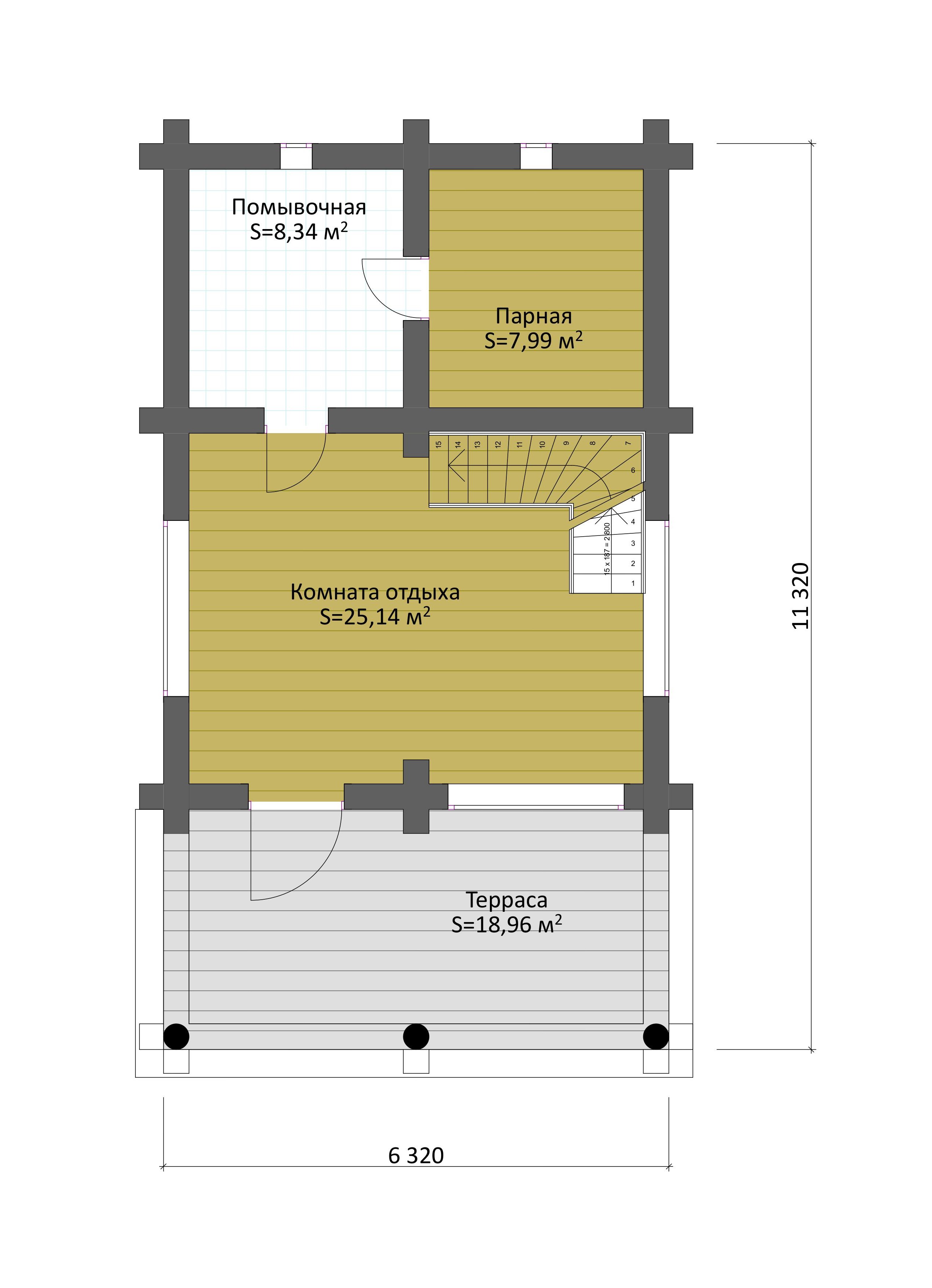
Баня "Бн-31"

114,18 м²
2 комнаты
2 этажа
Парная
Санузел
Душевая

Вместительная двухэтажная баня с парной, помывочной, комнатой и зоной отдыха и террасой и балконом.

Деревянные дома

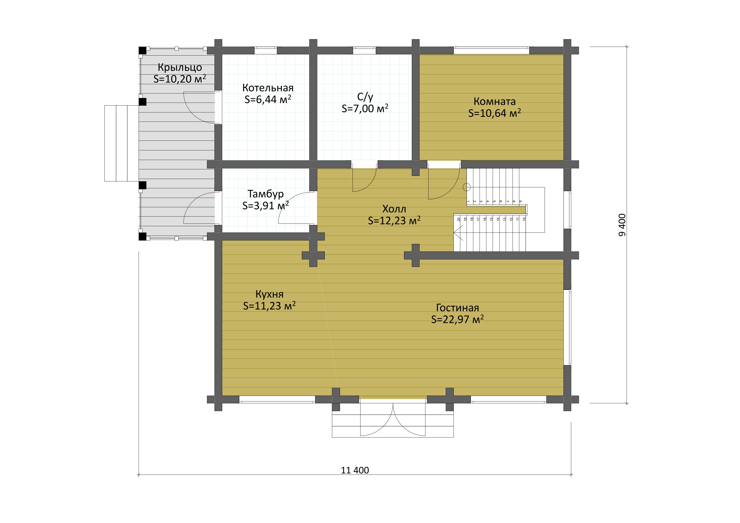
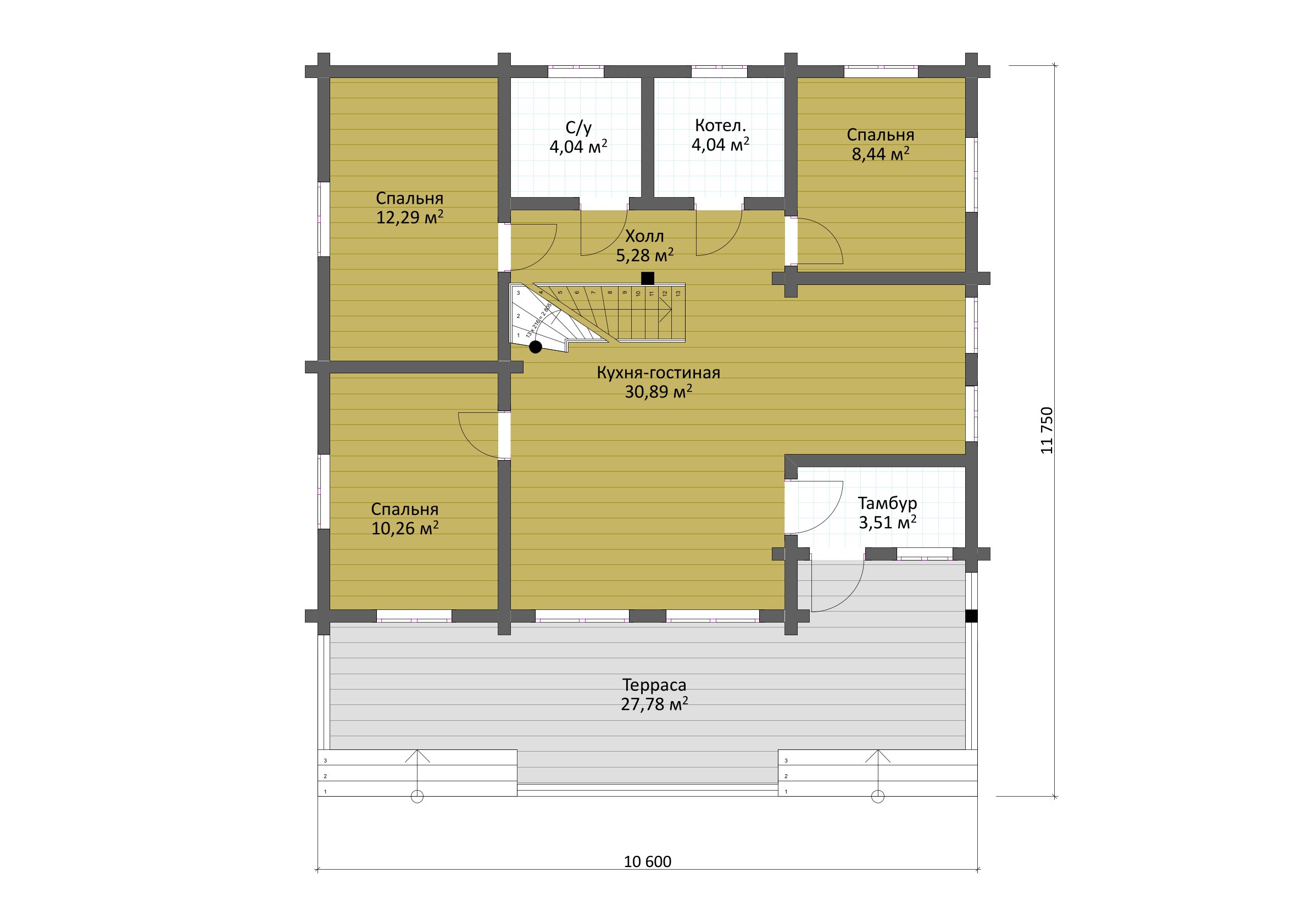
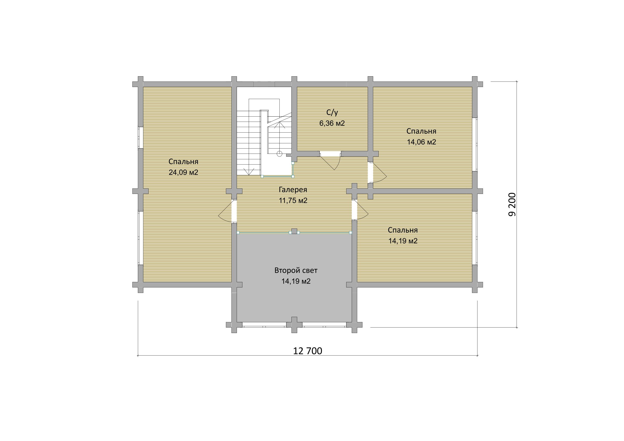
Дом "Бр-57"

210,33 м²
6 комнат
2 этажа
Санузел
Душевая

Просторный двухэтажный дом с продуманной планировкой включает четыре спальни, гостиную, кухню-столовую и галерею. Наличие кладовой и технического помещения обеспечивает дополнительное удобство для хранения.

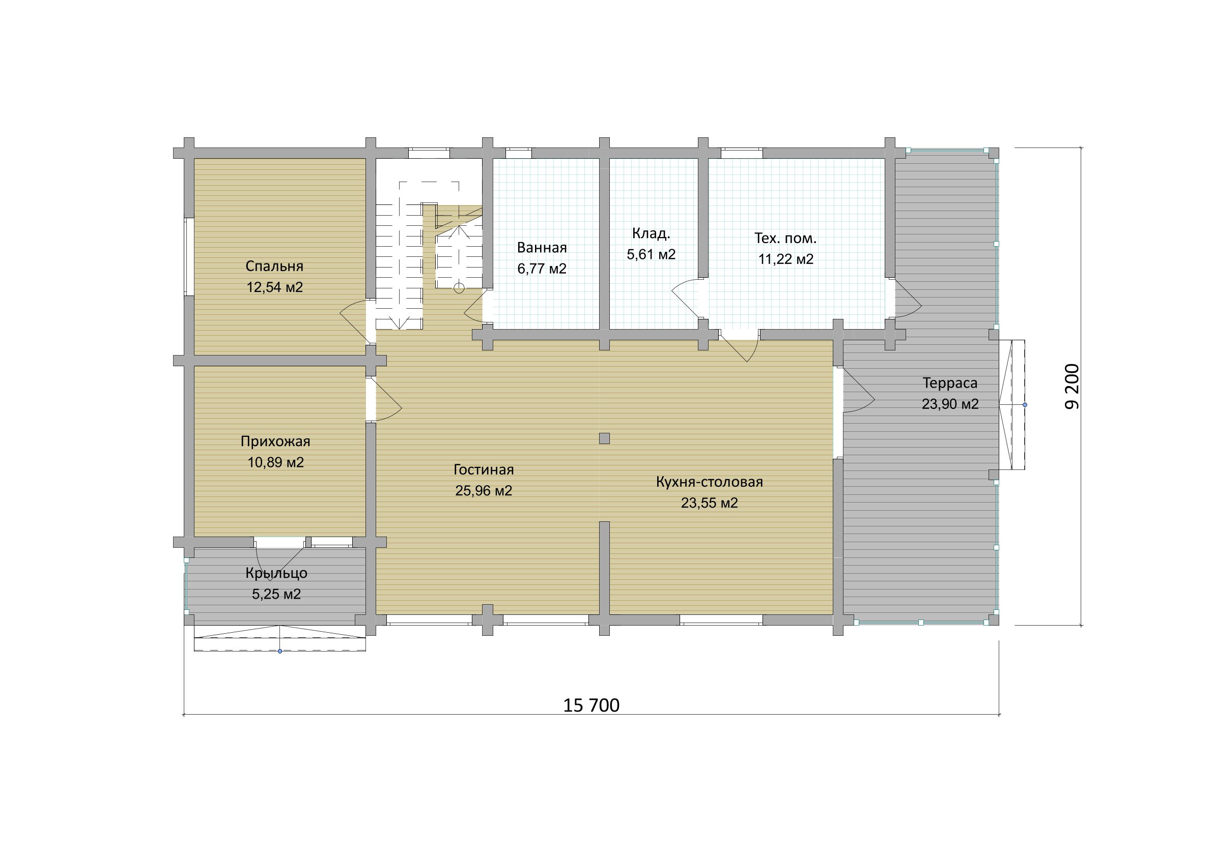
Дом "Бр-58"

144,34 м²
6 комнат
2 этажа
Санузел
Душевая

Уютный двухэтажный дом предлагает комфортное проживание с пятью спальнями и двумя санузлами. Продуманная планировка включает просторную гостиную и отдельную кухню.

Двухэтажный

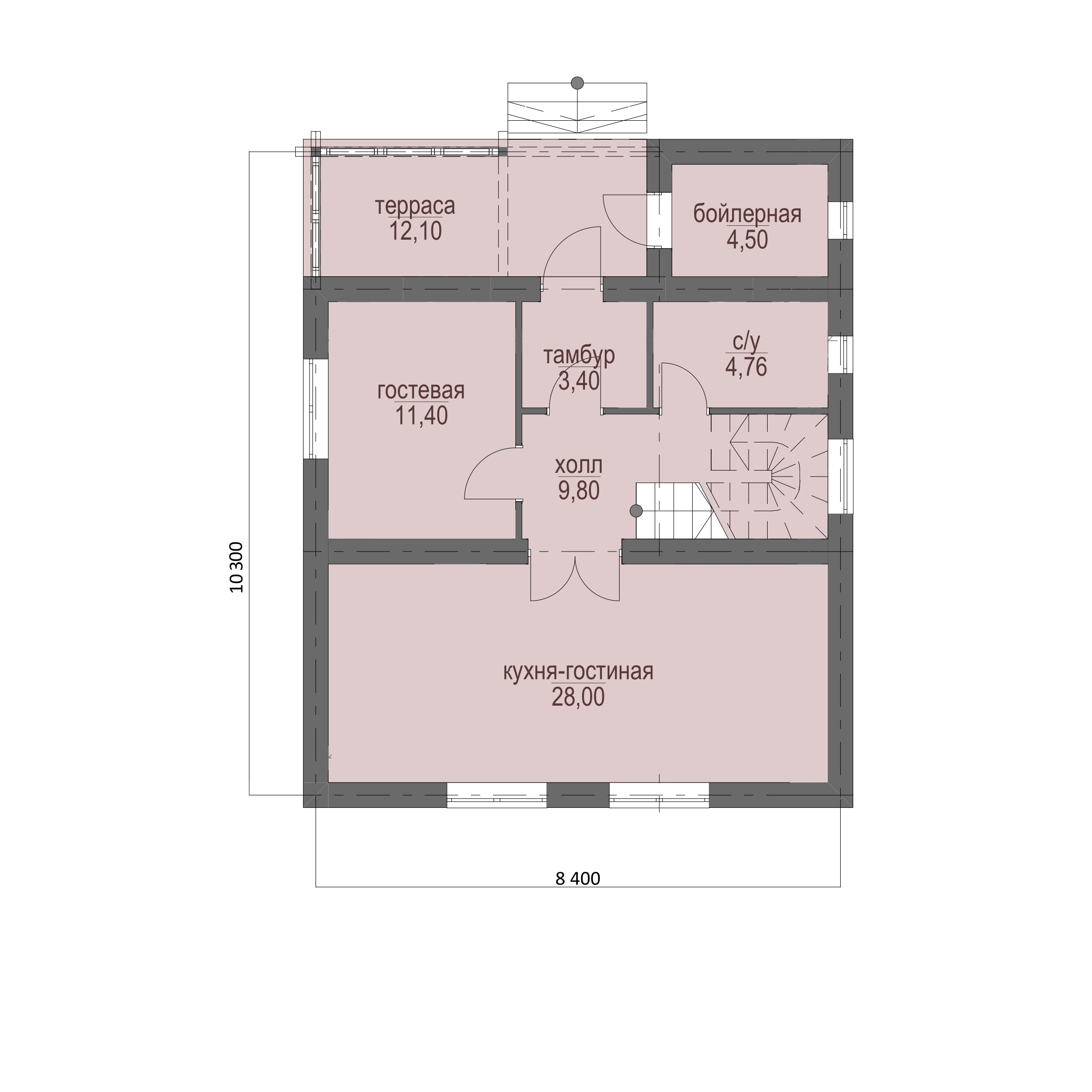
Дом "Бр-59"

94,82 м²
5 комнат
2 этажа
Санузел
Душевая

Компактный двухэтажный дом идеально подходит для небольшой семьи. Три спальни, объединённая кухня-гостиная и специальная зона отдыха создают комфортную атмосферу.

Каменные дома

Дом "К-5"

134,79 м²
5 комнат
1 этаж
2 санузла
2 душевых
Прачечная
Гардеробная

Комфортный каменный дом с продуманной организацией пространства: три спальни, два санузла, две гардеробные комнаты, кабинет и помещение для стирки.

Дом "К-10"

127,14 м²
4 комнаты
2 этажа
2 санузел
2 душевая
Гардеробная

Комфортный дом из камня с современной архитектурой — четыре жилые комнаты, два санузла и отдельная гардеробная.

Дом "К-8"

100,99 м²
4 комнаты
1 этаж
1 санузел
1 душевая
Гардеробная

Просторный дом из камня с продуманной современной планировкой, включающий четыре жилые комнаты, санузел и отдельную гардеробную зону.

Каркасные дома

Дом "К-1"

89,58 м²
3 комнаты
1 этаж
1 санузел
1 душевая

Небольшой одноэтажный каркасный дом с просторными комнатами и современной планировкой.

Дом "К-2"

60,98 м²
3 комнаты
1 этаж
1 санузел
1 душевая

Компактный одноэтажный каркасный дом с вместительными комнатами и удобной планировкой.

Дом "К-3"

79,8 м²
4 комнаты
1 этаж
1 санузел
1 душевая

Вместительный одноэтажный каркасный дом с большими комнатами и удобной планировкой.

Часто задаваемые вопросы

1
Сколько времени занимает строительство дома под ключ?

Сроки строительства зависят от площади дома, сложности проекта и выбранных материалов. В среднем строительство занимает:

  • Каркасный дом: 2-4 месяца
  • Дом из бруса: 3-6 месяцев
  • Каменный дом: 6-12 месяцев

Точные сроки определяются после разработки проекта и составления сметы.

2
Можно ли внести изменения в готовый проект?

Да, мы всегда готовы адаптировать типовой проект под ваши потребности. Вы можете:

  • Изменить планировку комнат
  • Добавить или убрать помещения
  • Скорректировать размеры дома
  • Выбрать другие отделочные материалы

Все изменения согласовываются с нашими архитекторами и инженерами.

3
Какой фундамент лучше для моего участка?

Выбор фундамента зависит от нескольких факторов:

  • Ленточный фундамент - для стабильных грунтов, каменных и кирпичных домов
  • Свайный фундамент - для участков со сложным рельефом и слабыми грунтами
  • Плитный фундамент - для пучинистых грунтов с высоким уровнем грунтовых вод
  • Столбчатый фундамент - для легких каркасных домов и бань
4
Вы предоставляете гарантию на строительство?

Да, мы предоставляем гарантию на все виды работ:

  • 5 лет - на несущие конструкции
  • 3 года - на кровельные работы
  • 2 года - на отделочные работы
  • 1 год - на инженерные системы

Все гарантийные обязательства фиксируются в договоре. Мы также осуществляем послегарантийное обслуживание.

5
Можно ли построить дом зимой?

Да, современные технологии позволяют вести строительство круглый год. Особенности зимнего строительства:

  • Используем противоморозные добавки для бетона
  • Применяем специальные технологии для работы с деревом
  • Обеспечиваем тепловой контур для комфортной работы
  • Используем материалы, адаптированные к низким температурам

Зимнее строительство может быть даже выгоднее - часто действуют сезонные скидки на материалы.

6
Как происходит оплата за строительство?

Мы предлагаем гибкую систему оплаты, которая включает несколько этапов:

  • 10% - предоплата при заключении договора
  • 25% - после заливки фундамента
  • 45% - после возведения стен и кровли
  • 20% - после сдачи объекта и подписания акта приемки

Остались вопросы?

Наши специалисты с радостью проконсультируют вас по всем вопросам строительства

Получить консультацию

Контакты

Свяжитесь с нами удобным для вас способом

Телефоны

+7 (903) 631 31 84

+7 (961) 140 07 22

Эл. почта

master.ok@yandex.ru

Адрес

г. Тверь, Октябрьский проспект, 70

Проектировщик

ИП Андреев Илья Алексеевич

+7 (920) 699 78 34

+7 (915) 717 82 14

QR-код

QR-код для быстрой связи

Наша группа в ВК